SH-166-041

Продам 2-поверховий недобудований будинок

Розташування: Одеса, Київський район, Дача Ковалевського, Саксаганського вул.
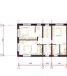
5 Кімнат
200 м2
3 сот.
Ціна
200 000 $

Інформація

Продам строящиеся дома европейского типа в экологической и курортной зоне нашего города.
Закрытый коттеджный кооператив на Даче Ковалевского.

Высочайшее качество строительства, индивидуальный подход к каждому клиенту, возможность рассрочки на 2 года с первоначальным взносом 15%.
Коттеджи выполнены из красного кирпича и облицованы керамикой, что редкость для рынка недвижимости, ведь в погоней за деньгами застройщики экономят на экологичности материалов.

Уникальное предложение на рынке недвижимости на морском побережье в курортной зоне Одессы.
Дома в +/- 200 кв.м. с участками в 3,5-7 сотки собственной земли обойдутся щт 200 тыс. у.е.

Не откладывайте на завтра свою инвестицию в будущее своих детей.
При покупке до конца января застройщик делает черновой ремонт за свой счет -разводка теплых полов, чистовая стяжка, разводка электрики и сантехники.

Возможно обустройство подвалов +10000$. Сдача первого дома летом 2024 года. Полная сдача всего комплекса -1 квартал 2025 года.

Інфраструктура

Банківськи послуги: термінал прийому платежів, пункт обміну валют;
Побутовий сервіс: мінімаркет, аптека;
Релаксаційні сервіси: море;
Обʼєкти громадського харчування: фастфуд;
200 000 $ вартість об'єкта
1 000 $ ціна за м2
200 м2
3 сот.
5 кімнат
2 К-ть поверхів

Параметри

центральна Вода:
можлива газифікація Газ:
автономне Опалення:
центральна Каналізація:
цегла Матеріал стін:
асфальт Під’їздна дорога:

Додатково

нера 497467

Відстані: море Черное: 1000 м, пішки 15 хв.;
Власність: приватна;
Дата оновлення інформації: 30.12.2025 13:08;