SF-3-299-114

Продам 3-кімнатну квартиру

Розташування: Одеса, Київський район, Таїрова, Небесної Сотні пр., 79А
3 Кімнат
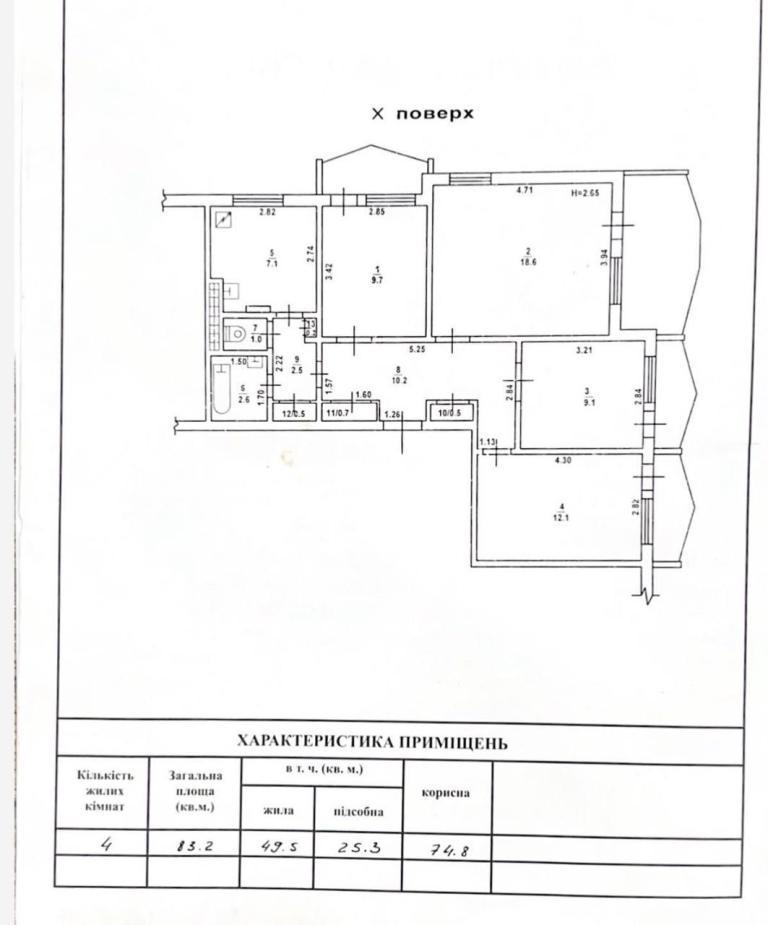
83 м2
10/16 10
Ціна
70 000 $

Інформація

В продаже 3-комн квартира на Таирова на пр-те Небесной сотни/магазин Ствол.
Планировка квартиры: отдельные три комнаты и кухня-гостиная.
Квартира укомплектована всей необходимой мебелью и техникой.
Есть большая ванная - смежная комната с ванной.
Два открытых и два закрытых балкона.
В районе много детских садов и школ, одна из которых находится прямо на территории двора.
Всё в шаговой доступности.
Квартира находится на 10 этаже, 16 этажей по всему дому.
Хорошая транспортная развязка.

70 000 $ вартість об'єкта
843 $ ціна за м2
83 м2
3 кімнат
10 Поверх
16 К-ть поверхів

Параметри

центральна Вода:
немає Газ:
центральне Опалення:

Доброустрій

Ліфт: пасажирський;

Додатково

Нера 369728, ПРОГРАММЫ

Власність: приватна;
Дата оновлення інформації: 14.05.2026 14:14;