SF-3-286-116

Продам 3-кімнатну квартиру в новобудові, ЖК «Акрополь»

Розташування: Одеса, Київський район, Середній Фонтан, Фонтанська Дорога, 25И, корп. б
3 Кімнат
106 м2
7/24 7
Ціна
143 000 $

Інформація

Просторная 3-комнатная квартира 106 м² в ЖК «Акрополь» на Фонтанской дороге

Предлагается к продаже просторная квартира в современном жилом комплексе «Акрополь», расположенном в одном из востребованных районов Одессы — на Фонтанской дороге.

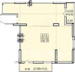
Квартира находится на 7 этаже 24-этажного дома в уже сданной секции комплекса. Общая площадь — 106 м², что позволяет реализовать удобную и функциональную планировку для комфортной жизни.

Особенность квартиры — просторная кухня-гостиная площадью 40 м², которая станет центром дома для семейных встреч и отдыха.

Квартира продаётся без отделочных работ, что даёт возможность оформить интерьер полностью по своему вкусу и создать пространство, идеально подходящее именно вам.

Преимущества объекта:
— современный жилой комплекс комфорт-класса
— нестандартная удобная планировка
— высота потолков 3 метра
— панорамный вид из окон
— в доме пассажирский и грузовой лифты

ЖК расположен в районе с развитой инфраструктурой: рядом магазины, кафе, учебные заведения, транспорт и удобный выезд к центру города и морю.

Отличный вариант для тех, кто ищет просторную квартиру в новом доме в районе Большого Фонтана.

Звоните, чтобы узнать подробности и договориться о просмотре квартиры.

143 000 $ вартість об'єкта
1 349 $ ціна за м2
106 м2
3 кімнат
7 Поверх
24 К-ть поверхів

Параметри

центральна Вода:
центральне Опалення:
холодна вода, гаряча вода, опалення Лічильники:

Доброустрій

Ліфт: пасажирський, вантажний;

Додатково

55934 ПП

Власність: приватна;
Дата оновлення інформації: 30.04.2026 17:03;