SF-3-277-375

Продам 1-кімнатну квартиру

Розташування: Одеса, Хаджибейський район, Бугаївка, Бугаївська вул., 37В
1 Кімнат
16 м2
4/6 4
Ціна
15 000 $

Інформація

Ищете компактную и выгодную квартиру в удобном районе? Отличное предложение на Молдаванке (Бугаёвка), ул. Бугаёвская — всего 15 минут до центра города!

Квартира площадью 16 м2 в современном доме от надёжных строителей.
Металлопластиковое остекление обеспечивает тепло и шумоизоляцию, установлена прочная входная дверь «Саган» — безопасность и спокойствие гарантированы.

Автономное электроотопление — экономное решение, позволяющее самостоятельно регулировать комфортную температуру и контролировать расходы.

Светлые коридоры, ухоженные подъезды с красивой лепниной на стенах создают приятную атмосферу уже с порога.
Здание хорошо освещено и находится под охраной — дополнительный плюс к безопасности и комфорту.

Район с отлично развитой инфраструктурой:
Супермаркеты «Идеал», «АТБ», «ТАВРИЯ-В», рядом «Копейка» и «Обжора»
Детские сады и школы
Магазины, аптеки, поликлиники, бизнес-центры
Рестораны и кафе
Два парка с водоёмами, бюветы, спортивные клубы, стадион, фотостудия

В пешей доступности остановки трамваев, троллейбусов, автобусов и маршруток.
Недалеко центральный автовокзал — удобно для поездок по городу и за его пределы.

Это отличный вариант для жизни, аренды или инвестиции!

Не упустите возможность приобрести квартиру в востребованном районе по привлекательной цене!
Свяжитесь сейчас, чтобы узнать детали и договориться о просмотре.

Інфраструктура

Заклади освіти: школа, дитсадок;
Банківськи послуги: відділення банку, банкомат, термінал прийому платежів, пункт обміну валют;
Побутовий сервіс: мінімаркет, супермаркет, аптека, клініка, перукарня, пошта, хімчистка;
Релаксаційні сервіси: дитячий майданчик;
Обʼєкти громадського харчування: кафе, ресторан, фастфуд, бар;
15 000 $ вартість об'єкта
938 $ ціна за м2
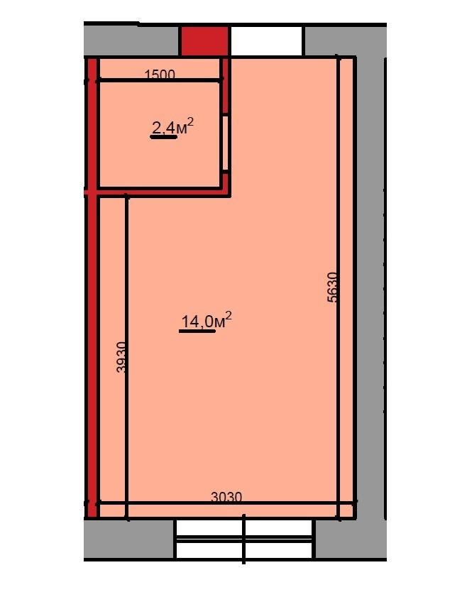
16 м2
1 кімнат
4 Поверх
6 К-ть поверхів

Параметри

центральна Вода:
немає Газ:
електричне Опалення:
холодна вода Лічильники:
виділена лінія Інтернет:
кабельне ТБ Телебачення:

Доброустрій

Краєвид із вікна: двір, вулиця;
Водонагрівач: електричний;
Безпека: домофон, броньовані двері;

Додатково

Нера 74026 СПС

Тип двору: прохідний;
Забудовник: Дельта Групп;
Власність: приватна;
Дата оновлення інформації: 03.04.2026 15:17;