SF-3-262-113

Продам 2-кімнатну квартиру в новобудові, ЖК «Простір на Донського»

Розташування: Одеса, Київський район, Великий Фонтан, Дмитріївська вул., 59/2, корп. 5
2 Кімнат
66 м2
5/7 поверх
Ціна
74 000 $

Інформація

Продаётся просторная двухкомнатная квартира в современном жилом комплексе Пространство на Донского, расположенном в одном из самых комфортных и зелёных районов Таирова.
Малоэтажный формат комплекса создаёт ощущение уюта, приватности и спокойной городской среды, что выгодно отличает его от высотной застройки.

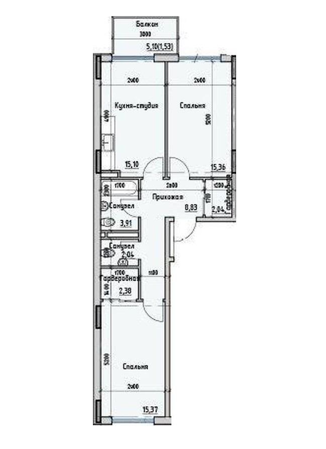
Квартира общей площадью 66 м2 расположена на удобном пятом этаже семиэтажного дома.
Планировка двухсторонняя, благодаря чему в квартире всегда много света и свежего воздуха.
Пространство грамотно организовано: из кухни предусмотрен выход на балкон, с которого открывается приятный вид на зелёный, ухоженный двор.

В квартире установлено автономное отопление от газового котла, что позволяет самостоятельно регулировать температуру и существенно экономить на коммунальных платежах.
Панорамное остекление наполняет помещения естественным светом и визуально расширяет пространство.
Предусмотрены два санузла и удобная гардеробная в прихожей, что делает проживание особенно комфортным.

Состояние от строителей даёт возможность реализовать индивидуальный дизайнерский проект и создать интерьер, полностью соответствующий вашему стилю жизни и потребностям, не переплачивая за готовые решения.

ЖК Пространство на Донского — это закрытая, благоустроенная территория, современная архитектура, аккуратные подъезды, зелёные зоны для отдыха и высокий уровень безопасности.
Район отличается развитой инфраструктурой и удобной транспортной развязкой.

Квартира идеально подойдёт как для комфортной семейной жизни, так и для долгосрочной инвестиции в качественную недвижимость.

Інфраструктура

Паркінг: наземний паркінг;
Заклади освіти: школа, дитсадок;
Банківськи послуги: відділення банку, банкомат, термінал прийому платежів, пункт обміну валют;
Побутовий сервіс: мінімаркет, супермаркет, торгівельний центр, ринок, парковка перед будинком, аптека, клініка, перукарня, пошта, хімчистка;
Релаксаційні сервіси: парк (сад), дитячий майданчик, море;
Обʼєкти громадського харчування: кафе, ресторан, фастфуд, бар;
74 000 $ вартість об'єкта
1 121 $ ціна за м2
66 м2
2 кімнат
5 Поверх
7 К-ть поверхів

Параметри

центральна Вода:
є Газ:
двоконтурний котел Опалення:
холодна вода, газ Лічильники:
оптоволокно Інтернет:
оптоволокно Телебачення:

Доброустрій

Ліфт: пасажирський, вантажний;
Краєвид із вікна: двір;
Водонагрівач: двоконтурний котел;
Безпека: консьєрж, охоронець, домофон, кодовий замок, пожежна сигналізація, протипожежна система, відеонагляд, охорона території, укриття, паркан;
Автономність: Працює ліфт, Працює інтернет, Є вода;

Додатково

Нера 381688 Переуступка

Тип двору: закритий;
Забудовник: Пространство;
Власність: приватна;
Дата оновлення інформації: 08.01.2026 11:37;