SF-2-849-658

Продам 3-кімнатну квартиру в новобудові

Розташування: Одеса, Київський район, Дача Ковалевського, Дача Ковалевського вул., 5А
3 Кімнат
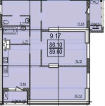
90 м2
9/26 поверх
Ціна
94 000 $

Інформація

В продаже квартира с прекрасным видом на море.
ЖК "Посейдон"- современном жилом комплексе в комфортабельном курортном районе Одессы на 16-й станции Большого Фонтана.
Квартира в состоянии "от строителей".

В ЖК Посейдон разработана концепция, позволяющая жителям дома пользоваться социально-бытовыми услугами в самом комплексе, даже не выходя за его пределы. Стильные лаунж-зоны, детская площадка, ландшафтные островки с озеленением, оборудованные места для солнечных ванн.
Реальному покупателю не большой торг

94 000 $ вартість об'єкта
1 044 $ ціна за м2
90 м2
3 кімнат
9 Поверх
26 К-ть поверхів

Параметри

центральна Вода:
центральне Опалення:
холодна вода, гаряча вода, опалення Лічильники:

Доброустрій

Краєвид із вікна: море;

Додатково

Власність: приватна;
Дата оновлення інформації: 29.01.2026 14:12;