SF-2-329-230

Продам 3-кімнатну квартиру в новобудові

Розташування: Одеса, Хаджибейський район, Молдаванка, Нищинського вул., 16
3 Кімнат
89 м2
1/10 поверх
Ціна
120 000 $

Інформація

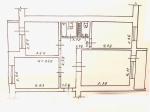
Продам 3-х квартиру в кирпичном спецпроекте от СК Стикон ул. Нищинского / Пишоновская. Находится на 1 бель этаже/10. Просторная квартира S=90m2. Двухсторонняя, не угловая. Добротное жилое состояние. Три раздельные комнаты и просторная кухня. Две лоджии. Полы-ламинат, плитка. Облицовка в санузле, заменены трубы, приборы учета, бойлер. Бронированная дверь, домофон, тамбур.
Закрытая придомовая территория, ухоженный двор.
Прекрасный вариант как для жизни так и под коммерцию

Інфраструктура

Заклади освіти: школа, дитсадок;
Банківськи послуги: відділення банку, банкомат, термінал прийому платежів, пункт обміну валют;
Побутовий сервіс: мінімаркет, супермаркет, торгівельний центр, парковка перед будинком, аптека, перукарня, пошта, хімчистка;
Релаксаційні сервіси: фітнес центр, парк (сад), дитячий майданчик, море;
Обʼєкти громадського харчування: кафе, ресторан, їдальня, бар;
120 000 $ вартість об'єкта
1 351 $ ціна за м2
88.80 м2
3 кімнат
1 Поверх
10 К-ть поверхів

Параметри

центральна Вода:
є Газ:
автономне Опалення:
холодна вода, гаряча вода, газ Лічильники:
локальна мережа Інтернет:
кабельне ТБ Телебачення:
цегла Матеріал стін:

Стан об’єкта

Сантехніка: імпортна, добрий стан;
Труби: сталь, пластик, добрий стан;
Підлога: ламінат, лінолеум, плитка на кухні, плитка у ванній, добрий стан;
Стіни: шпалери, добрий стан;
Стеля: натяжні, підвісні, добрий стан;
Радіатори опалення: сталь, чавун, добрий стан;
Проводина: мідь, добрий стан;
Вікна: металопластик, добрий стан;
Двері вхідні: броньовані, добрий стан;
Двері: дерево, ХДФ, добрий стан;

Доброустрій

Краєвид із вікна: двір, вулиця;
Кондиціювання: центральне;
Водонагрівач: електричний;
Побутова техніка: плазмовий телевізор, газова плита, духовка газова, холодильник, витяжка, електрочайник, пральна машина в санвузлі, пилосмок;
Додатково: меблі, Wi-Fi;
Безпека: консьєрж, домофон, кодовий замок, гратки на вікнах, пожежна сигналізація, відеонагляд, охорона території;

Додатково

нера - 768771

Забудовник: Стикон;
Власність: приватна;
Дата оновлення інформації: 28.01.2026 12:35;