SH-184-864

Продам 2-этажный дом

Местоположение: Лиманка, Одесская область, Одесский район, Микрорайон Дайберг ул.
5 Комнат
221 м2
4 сот.
Цена
90 000 $

Информация

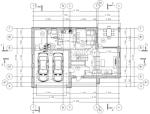
Общая площадь дома 221,11 м2.
Участок 4,4 сотки.
Гараж на 2 машины (часть дома.
Площадь балконов и террас 15 м2.
1 этаж (113,83 м2): прихожая, кухня-столовая-гостиная 53 м2, туалет-ванная, котельная, терраса, гараж.
2 этаж (107,28 м2): коридор, мастер-спальная, кабинет, спальная, детская, гардеробная, туалет-душевая, постирочная, балкон, терраса.
Высота потолков 3 метра.
Стены и перегородки - пенобетон 400 мм.
Канализация - центральная.
Все соседи адекватные.
Инфраструктура: на территории конечная маршрутки, рядом рынок, Метро, Эпицентр, АТБ, Сильпо и т.д.

Дайберг, это: огромная элитная закрытая территория, охрана, видеонаблюдение, въезд по номерам (автоматический), бассейн, сцена, парк, ресторан, детская и спортивная площадки, беговые дорожки, теннисный корт, стадион, церковь, два въезда (в будущем 3), аквапарк (по плану), частные дома, таунхаусы и дуплексы, озеленение и везде тротуарная плитка.

Инфраструктура

Банковские услуги: банкомат, терминал приема платежей;
Бытовой сервис: минимаркет, супермаркет, рынок, стоянка возле дома, аптека;
Релаксационные сервисы: бассейн, парк (сад), детская площадка;
Объекты общепита: кафе, фастфуд;
90 000 $ стоимость объекта
407 $ цена за м2
221 м2
4.40 сот.
5 комнат
2 Этажность

Параметры

центральная Вода:
есть Газ:
газовое Отопление:
центральная Канализация:
холодная вода Счетчики:
3 Высота потолков:

Дополнительная информация

Нера 896977

Собственность: частная;
Дата обновления информации: 30.12.2025 13:11;