SH-177-348

Продам 2-этажный таунхаус

Местоположение: Одесса, Киевский район, Большой Фонтан, Долгая ул.
3 Комнат
120 м2
1 сот.
Цена
100 000 $

Информация

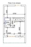
В продаже один из трёх таунхаусов на Долгой, район Таирова. Дом общей площадью 120 м2. На первом этаже одна комната, кухня-гостиная, санузел. На втором этаже: две спальни с одной из них есть выход на балкон, санузел. Рядом магазин и остановка общественного транспорта.
Госакт на землю.

100 000 $ стоимость объекта
833 $ цена за м2
120 м2
1 сот.
3 комнат
2 Этажность

Параметры

центральная Вода:
возможность газификации Газ:
автономное Отопление:
центральная Канализация:
асфальт Подъездная дорога:

Дополнительная информация

791484

Собственность: частная;
Дата обновления информации: 26.08.2025 13:06;