SF-3-205-376

Продам 1-комнатную квартиру в новостройке, ЖК «Пространство на Литературной»

Местоположение: Одесса, Приморский район, Белый Парус ЖК, Фонтанская Дорога, 71А
1 Комнат
47 м2
5/8 5
Цена
58 000 $

Информация

Продам 1-комнатную квартиру в престижном жилом комплексе «Пространство на Литературной».

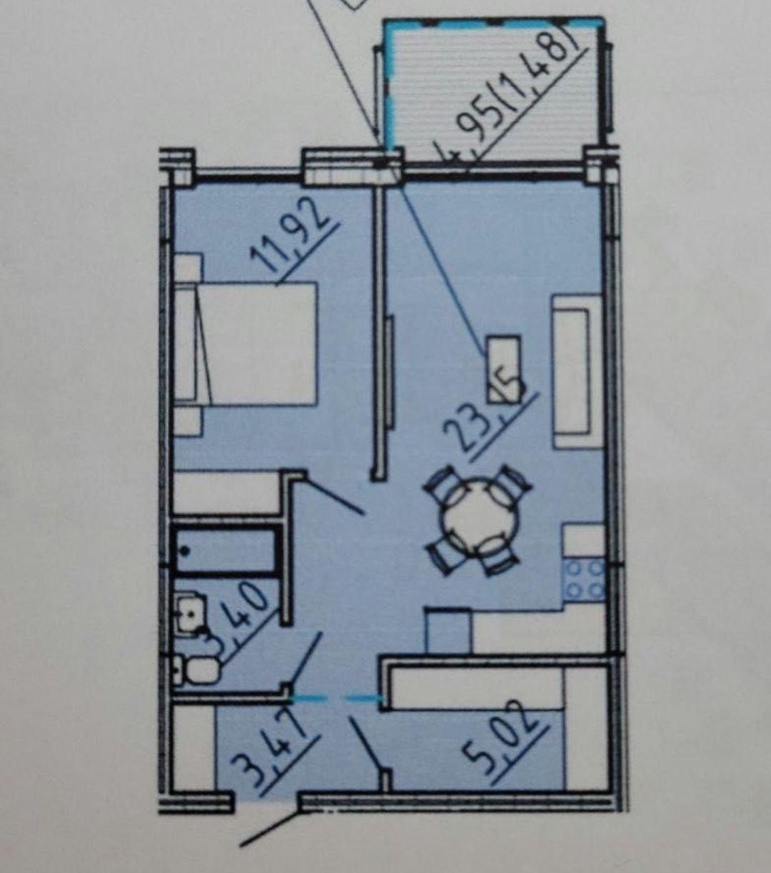
Квартира расположена на 5 этаже 8-этажного дома. Общая площадь — 48 м², удобная и продуманная планировка с просторной кухней 12 м² позволяет комфортно организовать пространство для жизни.

Жилой комплекс находится в одной из самых привлекательных локаций города: всего 600 метров до набережной и парка «Юность», а до Аркадии — около 2 км. Это сочетание близости к морю и развитой городской инфраструктуры.

На территории комплекса предусмотрены зоны отдыха, спортивные площадки и всё необходимое для комфортной жизни в современном формате.

Отличный вариант как для собственного проживания, так и для инвестиций с высокой арендной привлекательностью.

Продажа по переуступке.

Звоните, чтобы узнать подробности и записаться на просмотр.

58 000 $ стоимость объекта
1 235 $ цена за м2
46.96 м2
1 комнат
5 Этаж
8 Этажность

Параметры

центральная Вода:
центральное Отопление:

Дополнительная информация

555236

Собственность: частная;
Дата обновления информации: 07.05.2026 13:43;