SF-3-098-042

Продам 7-комнатную квартиру

Местоположение: Одесса, Приморский район, Центр, Малая Арнаутская ул., 1
7 Комнат
350 м2
3/3 этаж
Цена
455 000 $

Информация

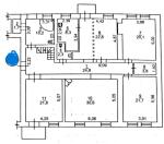
квартира в элитном районе: Малая Арнаутская угол Белинского. Парк Шевченко 5 мин. Море 10-15 мин пешком. историческое здание. Памятник архитектуры. 3 этаж и пентхаус. Двухэтажная квартира. Полы паркет. Итальянские двери. Крыша перекрыта. два санузла. Отопление эл. котел - индивидуальное. потолки 3м. Двухсторонняя (тихий двор и Малая Арнаутская) Солнечная.1 этаж 175 м.кв. - 5 комнат+кладовая, кухня, два санузла. Два балкона. Второй этаж 185 м.кв. по факту и 175 м.кв. по техпаспорту - открытое пространство. (под ремонт) Все документы в порядке. Приличные соседи в парадной (3 соседа на 3 этажа) Перед парадной парковочный карман. цена 1300уе за метр кв.

455 000 $ стоимость объекта
1 300 $ цена за м2
350 м2
7 комнат
3 Этаж
3 Этажность

Параметры

центральная Вода:
центральное Отопление:

Дополнительная информация

345082

Собственность: частная;
Дата обновления информации: 05.11.2025 15:53;