SF-2-503-133

Продам 2-комнатную квартиру

Местоположение: Одесса, Пересыпский район, Большевик, Балтская Дорога, 45
2 Комнат
43 м2
5/5 этаж
Цена
34 000 $

Информация

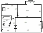
В продаже 2-х комн. квартира с ремонтом и большим гаражом 24 м.кв.
Комнаты раздельные. Крыша - новая, стены утеплены. Входная дверь металлическая, окна м-пластик. Есть электросчётчик, водомер, газовый счётчик. Отопление - водяное автономное экономное (электро-котёл с регулировкой температуры), есть бойлер - горячая вода и в ванной и на кухне, есть новый стояк, санузел и все трубы - новые, в квартире и в подвале. Канализация городская. Есть вытяжка. Есть интернет. Оплата за коммунальные платежи умеренная, все документы в порядке.
Во дворе есть гараж (4х6) 24м.кв., который входит в стоимость, он капитальный с фундаментом и новой крышей, есть детская площадка.
Жильё идеально подойдёт семье с детьми, с животными, с машиной.
Тихий, спокойный район.
Школа рядом с новым стадионом, есть садик, амбулатория, новая почта, аптека , т.ц. Пюре, мини маркет Точка. Остановка маршрутки рядом от дома 10 метров.
Бомбоубежище через дорогу, 3 минуты ходьбы.
Звони.Смотри.Живи.

34 000 $ стоимость объекта
791 $ цена за м2
43 м2
2 комнат
5 Этаж
5 Этажность

Параметры

центральная Вода:
есть Газ:
центральное Отопление:
холодная вода, горячая вода, газ, отопление Счетчики:
кирпич Материал стен:

Дополнительная информация

180837

Собственность: частная;
Дата обновления информации: 30.01.2026 10:42;