SF-2-342-962

Продам 3-комнатную квартиру в новостройке, ЖК «Дмитриевский»

Местоположение: Одесса, Киевский район, Таирова, Жаботинского ул., 56/7А
3 Комнат
95 м2
7/24 этаж
Цена
100 000 $

Информация

Продаётся 3-комнатная квартира в ЖК "Дмитриевский" на Жаботинского — ваш идеальный выбор!
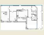
Просторная 3-комнатная квартира в современном комплексе «Дмитриевский», с общей площадью 94,8 м² и кухней 17 м² — это возможность создать идеальное пространство для вашей семьи.
Квартира готова к вашему дизайнерскому решению — черновая разводка электричества уже выполнена. Жилой комплекс сдан в 2018 году и предлагает закрытую охраняемую территорию для вашей безопасности.
Этот современный комплекс, расположенный на Жаботинского в Киевском районе, отличается развитой инфраструктурой и удобной транспортной доступностью. Это ваш шанс на комфортную и безопасную жизнь в престижном районе Одессы.
Свяжитесь с нами, чтобы обсудить покупку и записаться на просмотр! Реальным покупателям — выгодные условия! СПС

100 000 $ стоимость объекта
1 053 $ цена за м2
95 м2
3 комнат
7 Этаж
24 Этажность

Параметры

центральная Вода:
центральное Отопление:

Дополнительная информация

(нера 176279)

Дата обновления информации: 28.01.2026 11:38;