SC-192-224

Продам помещение свободного назначения

Местоположение: Одесса, Киевский район, Большой Фонтан, Фонтанская Дорога, 153Д
1 Комнат
75 м2
1/10 этаж
Цена
119 200 $

Информация

Коммерческое помещение в престижном ЖК "Каліпсо" на 13-й станции Большого Фонтана. Идеально подойдёт для различных видов деятельности!

Характеристики помещения:

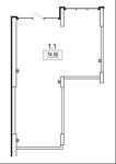
Площадь: 75 кв.м
Планировка: Свободная, подходит для любого вида бизнеса – салон, магазин, шоурум, кофейня и многое другое
Высокие потолки: Возможность создания двух уровней для увеличения пространства
Преимущества:

Расположение: Охраняемый современный комплекс на берегу моря
Безопасность: Круглосуточная охрана
Локация: Прекрасное место для ведения бизнеса с высоким трафиком
Ваш бизнес будет процветать в таком месте!

Стильный и современный комплекс
Привлекательная локация для клиентов
Удобные условия для различных видов деятельности
Не упустите возможность начать или расширить свой бизнес в престижном месте!

Звоните сейчас и договоритесь о просмотре! Ваш будущий успех начинается здесь.

Инфраструктура

Образовательные учреждения: школа, детсад;
Банковские услуги: отделение банка, банкомат, терминал приема платежей, пункт обмена валют;
Бытовой сервис: минимаркет, супермаркет, торговый центр, рынок, стоянка возле дома, аптека, клиника, парикмахерская, почта;
Релаксационные сервисы: фитнес центр, бильярд, сауна, бассейн, парк (сад), детская площадка, море;
Объекты общепита: кафе, ресторан, фастфуд;
119 200 $ стоимость объекта
1 600 $ цена за м2
74.50 м2
1 Помещений
10 Этажность

Параметры

центральная Вода:
возможность газификации Газ:
автономное Отопление:
центральная Канализация:
холодная вода Счетчики:
4 Высота потолков:
монолитный железобетон Материал стен:
железобетон Материал перекрытий:
асфальт Подъездная дорога:

Благоустройство

Вид из окна: двор, улица;
Безопасность: охранник, пожарная сигнализация, охранная сигнализация, видеонаблюдение, охраняемая территория;

Дополнительная информация

779095

Застройщик: Гефест;
Собственность: частная;
Дата обновления информации: 29.09.2025 12:51;