Персональний сайт рієлтора

Стойкова Алена

Привет! Это Алена Ваш риэлтор
+380 (67) 790-46-42
+380 (97) 263-55-95
+380 (94) 931-64-34
Надіслати оголошення

Це оголошення уже закрито

SF-3-121-752

Продам 3-кімнатну квартиру в новобудові, ЖК «Елегія Парк»

Розташування: Одеса, Приморський район, Аркадія, Генуезька вул., 1/2
3 Кімнат
83 м2
15/24 поверх
Ціна
110 000 $

Інформація

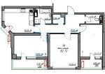
Продается трехкомнатная квартира в Аркадии, в жилом комплексе Элегия Парк. Общая площадь — 83 м2.

Квартира без ремонта, что позволяет новому владельцу реализовать собственный дизайн-проект.
Планировка включает два санузла, техническое помещение и два балкона.
Все комнаты просторные и светлые.

ЖК Элегия Парк расположен в престижном районе рядом с морем и Аркадийской аллеей.
Комплекс с закрытой территорией, круглосуточной охраной, современными лифтами, подземным паркингом и развитой инфраструктурой.

Отличный вариант как для жизни, так и для инвестиции.

Інфраструктура

Заклади освіти: школа, дитсадок;
Банківськи послуги: відділення банку, банкомат, термінал прийому платежів, пункт обміну валют;
Побутовий сервіс: мінімаркет, супермаркет, торгівельний центр, ринок, парковка перед будинком, аптека, клініка, перукарня, пошта, хімчистка;
Релаксаційні сервіси: парк (сад), дитячий майданчик, море;
Обʼєкти громадського харчування: кафе, ресторан, фастфуд, бар;
110 000 $ вартість об'єкта
1 325 $ ціна за м2
83 м2
3 кімнат
15 Поверх
24 К-ть поверхів

Параметри

центральна Вода:
немає Газ:
автономне Опалення:
холодна вода Лічильники:
оптоволокно Інтернет:
кабельне ТБ Телебачення:
моноліто-каркас Матеріал стін:

Доброустрій

Ліфт: пасажирський, вантажний;
Безпека: консьєрж, охоронець, домофон, кодовий замок, броньовані двері, пожежна сигналізація, протипожежна система, відеонагляд, охорона території, укриття, паркан;
Автономність: Працює ліфт, Працює інтернет, Є вода, Є опалення;

Додатково

Нера 165292

Власність: приватна;
Дата оновлення інформації: 16.09.2025 12:14;