SF-3-297-758

Продам 1-кімнатну квартиру в новобудові, ЖК 61 Перлина

Розташування: Одеса, Хаджибейський район, Іподром, Краснова вул., 3
1 Кімнат
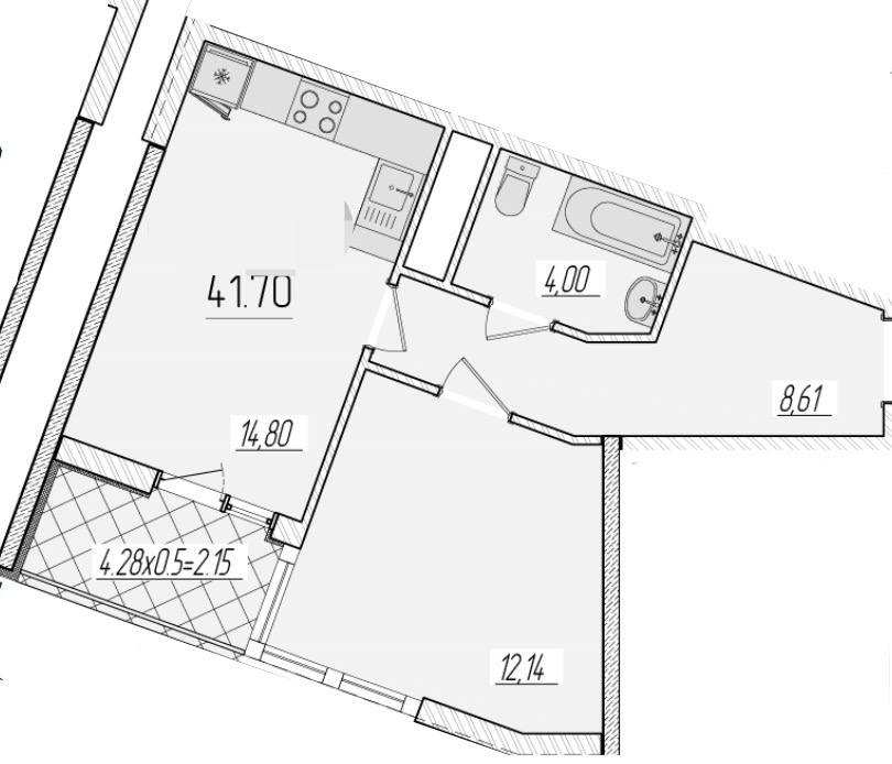
42 м2
11/24 11
Ціна
79 500 $

Інформація

Продается стильная с дизайнерским ремонтом и полностью укомплектованная 1-ком. квартира (евродвушка) на 11 этаже престижного жилого комплекса «61-я Жемчужина» — от застройщика KADORR Group.
Площадь 42 кв.м. продумана до мелочей: просторная кухня-студия, уютная спальня с большим балконом и видом во двор и на ипподром.
Высокие потолки (2,75 м) и панорамные окна дарят максимум света и ощущение свободы.

В квартире выполнен свежий дизайнерский ремонт с использованием качественных материалов.
Установлена современная мебель и техника.

Уникальные преимущества комплекса:
Надежная инфраструктура: генератор, обеспечивающий освещение коридоров и холлов, работу лифта, водоснабжение и отопление даже при отключениях электроэнергии.
Безопасность: видеонаблюдение и круглосуточная охрана 24/7.

Комфорт и удобство:
— Подземный паркинг
— Отлично оборудованное убежище.
— Современные зоны отдыха
— Детские и спортивные площадки
— Большая зона барбекю.
— Развитая инфраструктура с кафе, ресторанами и фитнес-клубами

ЖК «61-я Жемчужина» расположен в Приморском районе, рядом со сквером Шклярука и вблизи всей городской инфраструктуры: супермаркеты, школы, детские сады, аптеки и банки — всё рядом. До центра и пляжей Аркадии — всего 10 минут.

Оформление через договор инвестирования.
Переуступку оплачивает продавец.

79 500 $ вартість об'єкта
1 893 $ ціна за м2
42 м2
1 кімнат
11 Поверх
24 К-ть поверхів

Параметри

центральна Вода:
центральне Опалення:

Доброустрій

Ліфт: пасажирський, вантажний;
Краєвид із вікна: двір;

Додатково

200030 нера

Тип двору: закритий;
Забудовник: Кадорр;
Власність: приватна;
Дата оновлення інформації: 31.03.2026 19:00;