SF-3-291-921

Продам 1-кімнатну квартиру, ЖК 68 Перлина

Розташування: Одеса, Хаджибейський район, Іподром, Краснова вул., 3/68
1 Кімнат
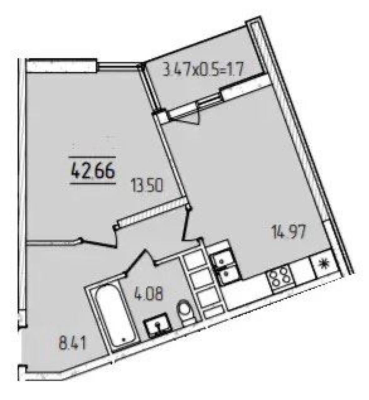
43 м2
17/24 17
Ціна
52 000 $

Інформація

Предлагается к продаже 1-комн квартира в новом жилом комплексе ЖК 68 Жемчужина.
Квартира расположена на 15/25 этаже, общей площадью 43 кв.м.
Из окон квартиры вид на ипподром.
Состояние под готовую чистовую отделку.
В комплексе подземный паркинг, закрытая охраняемая территория.

52 000 $ вартість об'єкта
1 209 $ ціна за м2
43 м2
1 кімнат
17 Поверх
24 К-ть поверхів

Параметри

центральна Вода:
немає Газ:
автономне Опалення:

Доброустрій

Ліфт: пасажирський, вантажний;

Додатково

Нера 290125

Власність: приватна;
Дата оновлення інформації: 16.03.2026 12:12;