SF-3-229-705

Продам 2-кімнатну квартиру

Розташування: Одеса, Хаджибейський район, Черемхи, Бреуса вул., 26
2 Кімнат
47 м2
1/9 поверх
Ціна
38 000 $

Інформація

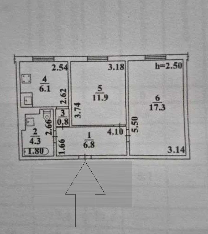
Продаётся уютная двухкомнатная квартира на улице Бреуса — удобный первый этаж, общая площадь 47,2 м2.
Дом расположен в тихом, обжитом районе с зелёными дворами и доброжелательными соседями, где чувствуется настоящая одесская атмосфера уюта и покоя.

Квартира в хорошем жилом состоянии, после косметического ремонта.
Просторная и светлая, с продуманной планировкой, в которой всё удобно и логично.
На окнах установлены решётки, что добавляет безопасности.
В квартире остаётся вся необходимая мебель, холодильник и бойлер — можно заехать и жить без лишних хлопот и дополнительных затрат.

Дополнительным преимуществом является отдельная кладовая площадью 3,2 м2, расположенная прямо на этаже — отличное место для хранения сезонных вещей, инструментов или бытовых принадлежностей.

Парадная ухоженная, чистая, в доме действует ОСМД — всё содержится в порядке и чистоте.
Район с развитой инфраструктурой: рядом школы, детские сады, супермаркеты, аптеки и остановки общественного транспорта.
Всё необходимое для комфортной жизни — в шаговой доступности.

Эта квартира станет отличным вариантом для тех, кто ищет уютное, практичное жильё в хорошем районе.
Подойдёт как для молодой семьи, так и для пожилых людей — удобный первый этаж, спокойное окружение и всё под рукой.

Інфраструктура

Заклади освіти: школа, дитсадок;
Банківськи послуги: відділення банку, банкомат, термінал прийому платежів, пункт обміну валют;
Побутовий сервіс: мінімаркет, супермаркет, торгівельний центр, ринок, парковка перед будинком, аптека, клініка, перукарня, пошта, хімчистка;
Релаксаційні сервіси: парк (сад), дитячий майданчик;
Обʼєкти громадського харчування: кафе, ресторан, фастфуд, бар;
38 000 $ вартість об'єкта
805 $ ціна за м2
47.20 м2
2 кімнат
1 Поверх
9 К-ть поверхів

Параметри

центральна Вода:
є Газ:
центральне Опалення:
холодна вода, газ Лічильники:
виділена лінія Інтернет:
кабельне ТБ Телебачення:
газоблок Матеріал стін:

Доброустрій

Ліфт: пасажирський;
Краєвид із вікна: вулиця;
Водонагрівач: електричний;
Побутова техніка: газова плита, холодильник;
Додатково: меблі, Wi-Fi;
Безпека: кодовий замок;
Автономність: Є вода, Є опалення;

Додатково

Нера 455791 СПС менее 3-х лет

Тип двору: прохідний;
Власність: приватна;
Дата оновлення інформації: 29.01.2026 12:26;