SF-3-134-917

Продам 1-кімнатну квартиру в новобудові, ЖК «Брусніка»

Розташування: Одеса, Хаджибейський район, Залізничний, Олексія Вадатурського вул., 127, корп. 1
1 Кімнат
29 м2
1/4 поверх
Ціна
37 000 $

Інформація

Продам 1-комнатную квартиру в ЖК "Брусника" на Черёмушках Расположена на 1-м этаже 4-х этажного дома.

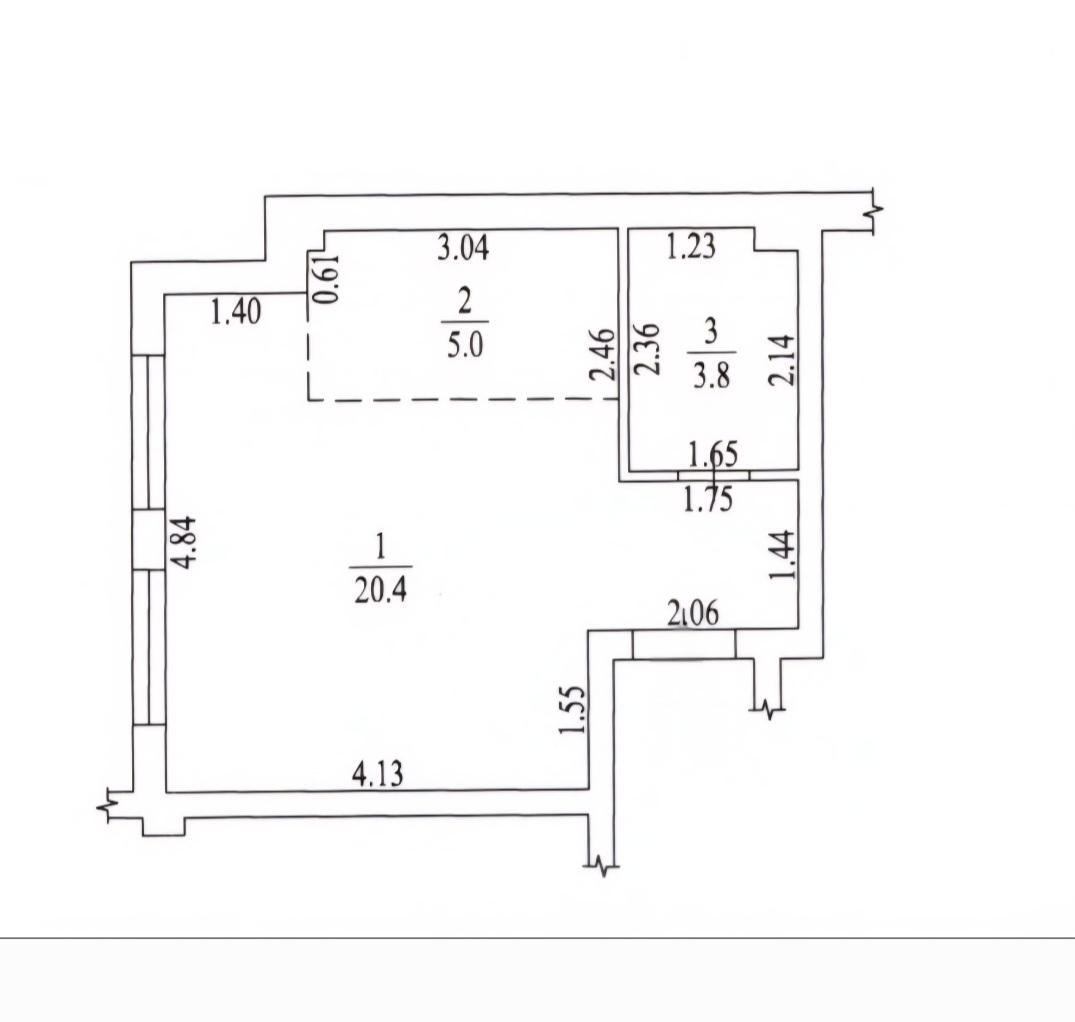
Общая площадь - 29,2 кв.м.
Квартира с евроремонтом из высококачественных материалов, пол с подогревом.
Оборудована квартира мебелью и бытовой техникой ведущих производителей.
Установлен двухконтурный котёл - индивидуальное отопление и горячая вода квартиры, что позволяет экономить на коммунальных платежах.

Комплекс расположен в частном секторе в окружении малоэтажных домов.
Фасад дома утеплён, вентилирован.
Придомовая территория ограждена и закрыта.
В пешеходной доступности расположены магазины, банки, аптеки, 10-я горбольница, Малиновский рынок, Дом мебели, остановка общественного транспорта.

37 000 $ вартість об'єкта
1 267 $ ціна за м2
29.20 м2
1 кімнат
1 Поверх
4 К-ть поверхів

Параметри

центральна Вода:
є Газ:
двоконтурний котел Опалення:

Доброустрій

Краєвид із вікна: двір, вулиця;

Додатково

Договор купли-продажи, 12.05.2026 г. будет 3 года. код нера 14699

Тип двору: закритий;
Власність: приватна;
Дата оновлення інформації: 05.02.2026 16:32;