SF-3-130-163

Продам 2-кімнатну квартиру в новобудові, ЖК «Шістдесят восьма перлина»

Розташування: Одеса, Хаджибейський район, Іподром, Краснова вул.
2 Кімнат
60 м2
5/24 поверх
Ціна
60 000 $

Інформація

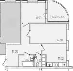
Продам 2-комнатную квартиру в ЖК Жемчужина 68 на Краснова.
Правильная планировка, общая площадь 60 метров2, комнаты раздельные, из одной комнаты выход на закругленный балкон. Просторный холл 14 м2, санузел раздельный.
Состояние от строителей.
Срок сдачи 2-ой квартал 2025 года.

60 000 $ вартість об'єкта
1 000 $ ціна за м2
60 м2
2 кімнат
5 Поверх
24 К-ть поверхів

Параметри

центральна Вода:
центральне Опалення:

Доброустрій

Краєвид із вікна: двір;

Додатково

НЕРА - 899641

Дата оновлення інформації: 14.08.2025 11:47;