SH-183-699

Продам 2-этажный таунхаус

Местоположение: Одесса, Хаджибейский район, Ленпоселок, Блока ул.
2 Комнат
55 м2
1 сот.
Цена
28 000 $

Информация

В продаже двухуровневая квартира в доме типа Таунхаус.
На первом этаже санузел и кухня студия с выходом в личный дворик.
На втором этаже две комнаты.
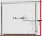
Общая площадь 55 кв. м.
Площадь двора 19 кв. м.
Свое паркоместо на закрытой парковке, индивидуальное газовое отопление, городские коммуникации, видеонаблюдение .
Хорошее месторасположение, район Академии спорта.
В пешей доступности супермаркеты, рынок, остановка общественного транспорта.

Инфраструктура

Банковские услуги: терминал приема платежей, пункт обмена валют;
Бытовой сервис: минимаркет, супермаркет, рынок, аптека;
Релаксационные сервисы: парк (сад);
Объекты общепита: кафе, фастфуд;
28 000 $ стоимость объекта
509 $ цена за м2
55 м2
0.50 сот.
2 комнат
2 Этажность

Параметры

центральная Вода:
есть Газ:
автономное Отопление:
центральная Канализация:
2.8 Высота потолков:
асфальт Подъездная дорога:

Дополнительная информация

Нера 957691

Собственность: частная;
Дата обновления информации: 31.10.2025 14:51;