SF-3-234-056

Продам 1-комнатную квартиру в новостройке, ЖК «Эллада»

Местоположение: Одесса, Приморский район, Аркадия, Генуэзская ул., 1/1, корп. 5
1 Комнат
41 м2
13/24 этаж
Цена
45 000 $

Информация

Отличное предложение для инвесторов и покупателей, планирующих бюджет: продажа просторной однокомнатной квартиры в популярном жилом комплексе "Еллада".

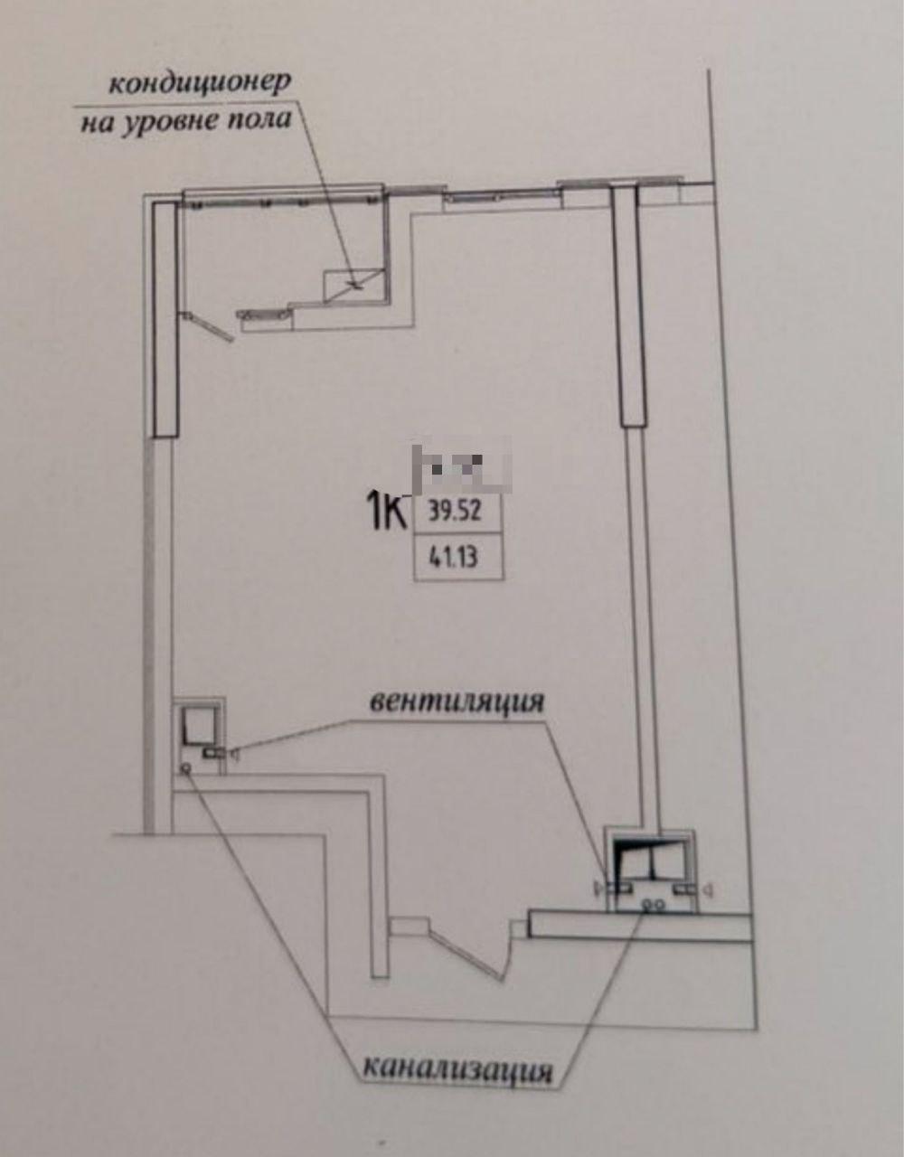
Квартира находится на 13-м этаже в доме, который сейчас на этапе строительства. Ключевое финансовое преимущество — возможность оформления рассрочки и приобретение по переуступке прав. Планировка включает совмещенный санузел.

Покупка на этапе строительства и возможность поэтапной оплаты делают этот объект высоколиквидной и доступной инвестицией.

Фиксируйте выгодные условия! Звоните немедленно, чтобы узнать подробности о рассрочке и оформить переуступку.

45 000 $ стоимость объекта
1 094 $ цена за м2
41.13 м2
1 комнат
13 Этаж
24 Этажность

Параметры

центральная Вода:
центральное Отопление:

Дополнительная информация

139187

Собственность: частная;
Дата обновления информации: 10.02.2026 12:31;