SF-3-220-039

Продам 2-комнатную квартиру в новостройке, ЖК «Атмосфера»

Местоположение: Одесса, Приморский район, Аркадия, Курортный пер., 2
2 Комнат
66 м2
2/25 этаж
Цена
80 000 $

Информация

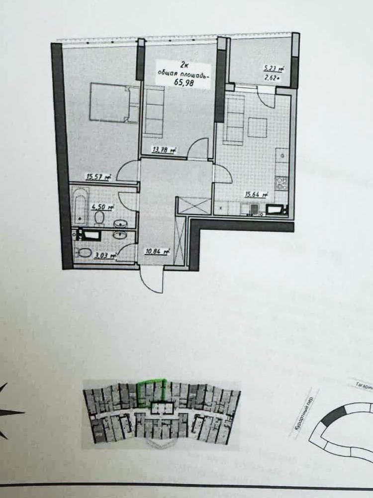
В продаже двухкомнатная квартира в ЖК Атмосфера - востребованный комплекс в Аркадии!

Отличная планировка -раздельные комнаты, просторная кухня.
Квартира расположена на комфортном втором этаже. Состояние от строителей позволяет воплотить в реальность самые креативные дизайнерские идеи и создать комфорт и уют на свой вкус.

ЖК «Атмосфера» — современный комплекс комфорт-класса с охраняемой территорией, подземным паркингом и отличной транспортной доступностью.

До пляжа Аркадия — 10 минут пешком, рядом кафе, фитнес, торговые центры, школа, парк.
Отличный вариант как для жизни, так и под инвестицию.

80 000 $ стоимость объекта
1 212 $ цена за м2
66 м2
2 комнат
2 Этаж
25 Этажность

Параметры

центральная Вода:
центральное Отопление:

Благоустройство

Лифт: пассажирский, грузовой;
Вид из окна: улица;

Дополнительная информация

Нера 596973

Тип двора: закрытый;
Дата обновления информации: 13.11.2025 13:18;