Это объявление уже закрыто

SF-3-184-909

Продам апартаменты, ЖК «Пространство на Дачной»

Местоположение: Одесса, Киевский район, Большой Фонтан, Дачная ул., 28/2Д
2 Комнат
49 м2
2/6 2
Цена
58 000 $

Информация

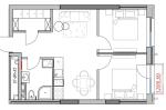
В продаже уютная квартира общей площадью 49 м², расположенная на втором этаже современного семиэтажного дома в одном из самых комфортных жилых комплексов города.
Преимущества:
Евро-двушка с улучшенной планировкой: просторная кухня-гостиная и отдельная спальня.
Начат ремонт: заведены трубы,электрика. Чистовая шпатлевка стен, отличная стяжка.
Красивая, ухоженная территория с ландшафтным дизайном
Всегда есть свет, вода и отопление — благодаря крышной котельной, генератору и полной автономности комплекса
Комплекс охраняется 24/7, въезд через шлагбаум
Море — в пешей доступности!
Свой подземный паркинг
Идеальное сочетание комфорта, безопасности и природы. Отлично подойдёт как для жизни, так и для аренды.
Звоните — покажем в удобное время!


---

58 000 $ стоимость объекта
1 184 $ цена за м2
49 м2
2 комнат
2 Этаж
6 Этажность

Параметры

центральная Вода:
автономное Отопление:

Благоустройство

Вид из окна: двор;

Дополнительная информация

42491 секция 2

Тип двора: закрытый;
Собственность: частная;
Дата обновления информации: 12.03.2026 16:41;