SF-3-013-713

Продам 2-комнатную квартиру в новостройке, ЖК «DERBY STYLE HOUSE»

Местоположение: Одесса, Хаджибейский район, Ипподром, Фонтанская Дорога, 6, корп. 6
2 Комнат
77 м2
14/20 этаж
Цена
85 000 $

Информация

Новый стильный клубный дом на Фонтанской дороге, 4 станция Большого Фонтана!

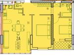
Предлагаем вам просторную квартиру площадью 77 м2 с раздельными комнатами и кухней-гостиной.
Жилая площадь составляет 27 м2, кухня-гостиная — 32 м2, что позволяет создать уютное и функциональное пространство для жизни.

Дом планируется к сдаче в 2025 году, а его расположение обеспечит вам комфортное проживание с удобной транспортной развязкой.
В пешей доступности находятся школы, детские сады, магазины, учебные заведения, а также парк Победы и море, что делает квартиру идеальной для тех, кто ценит стиль, комфорт и любит прогулки на свежем воздухе.

Ваш новый дом ждёт вас!

Инфраструктура

Образовательные учреждения: школа, детсад;
Банковские услуги: отделение банка, банкомат, терминал приема платежей, пункт обмена валют;
Бытовой сервис: минимаркет, супермаркет, торговый центр, рынок, стоянка возле дома, аптека, клиника, парикмахерская;
Релаксационные сервисы: парк (сад), детская площадка, озеро / река;
Объекты общепита: кафе, ресторан, бар;
85 000 $ стоимость объекта
1 104 $ цена за м2
77 м2
2 комнат
14 Этаж
20 Этажность

Параметры

центральная Вода:
нет Газ:
автономное Отопление:
холодная вода Счетчики:
оптоволокно Интернет:
монолито-каркас Материал стен:

Благоустройство

Безопасность: консьерж, охранник, домофон, бронированные двери, пожарная сигнализация, противопожарная система, видеонаблюдение, охраняемая территория, укрытие, забор;

Дополнительная информация

Нера 976144

Застройщик: ГРАФ;
Собственность: частная;
Дата обновления информации: 30.09.2025 11:11;