SF-2-894-859

Продам 1-комнатную квартиру, ЖК «Шестьдесят восьмая жемчужина»

Местоположение: Одесса, Хаджибейский район, Ипподром, Краснова ул., 3/68
1 Комнат
42 м2
7/24 этаж
Цена
41 000 $

Информация

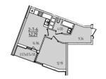
В продаже просторная 1-комнатная квартира в современном жилом комплексе Кадор Сити на ул. Краснова. Площадь 42 кв.м, кухня - 15 кв.м. Состояние - от строителей.
Квартира находится на комфортном 7-ом этаже 24-этажного дома. Из окон открывается вид на парк.
Комплекс с закрытой охраняемой территорий и паркингом. Отличная благоустроенная инфраструктура.
Звоните!

41 000 $ стоимость объекта
976 $ цена за м2
42 м2
1 комнат
7 Этаж
24 Этажность

Параметры

центральная Вода:
автономное Отопление:

Благоустройство

Вид из окна: улица, парк (сад);

Дополнительная информация

268651 Нера

Собственность: частная;
Дата обновления информации: 30.08.2025 11:04;